← Zurück

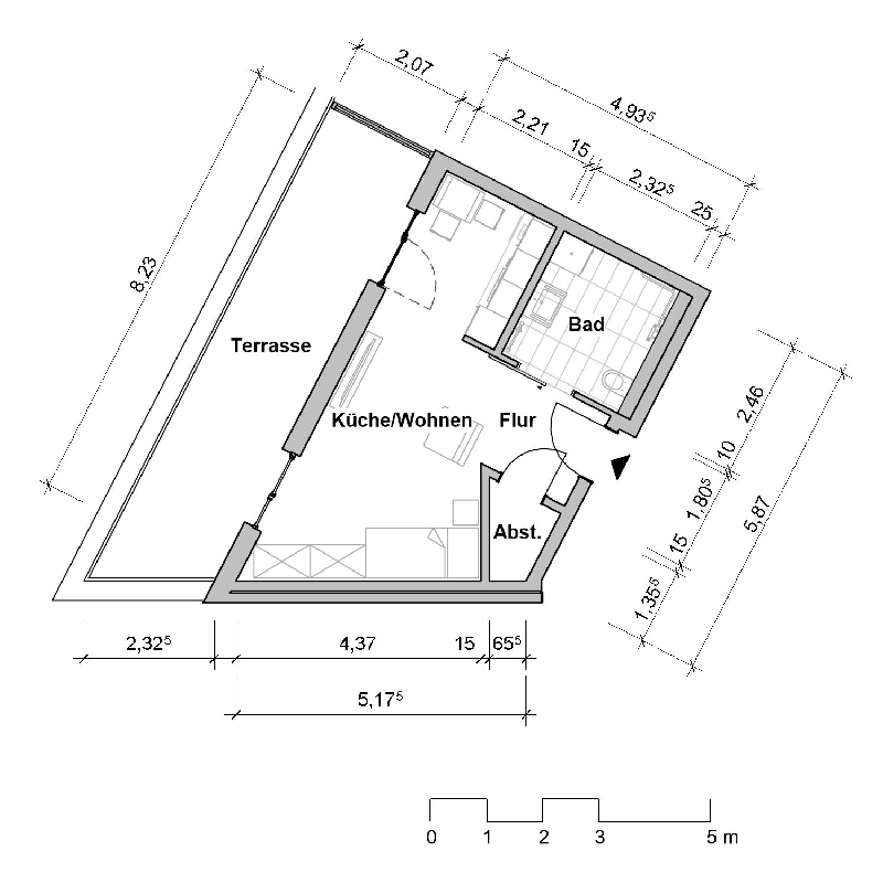
1 Zimmer Apartment 02.03.84 | 3. OG

3. OG Etage
1 Zimmer
38 m² Wohnfläche gesamt
Für ein persönliches Angebot lassen Sie sich durch uns beraten.

← Zurück

Bei Interesse an einer Service-Wohnung in der ProCurand Residenz Nordend kontaktieren Sie bitte:

Katja Dräger, Residenzleitung in der Residenz Nordend in Eberswalde© ProCurand
Foto: ProCurand

Katja Dräger

Residenzleitung

ProCurand Residenz Nordend 
Poratzstraße 48
16225 Eberswalde

Telefon 03334 5262250

E-MailResidenz-Nordend@procurand.de

Informationen zum Datenschutz finden Sie hier.

Felder mit * müssen ausgefüllt werden.